ATRESH INMOBILIARIA MOGUER
  • Inicio
  • Nosotros
  • Servicios
  • Inmuebles
  • Contactar
635 886 008
ATRESH INMOBILIARIA MOGUER
  • Inicio
  • Nosotros
  • Servicios
  • Inmuebles
  • Contactar
635 886 008
  • Inicio

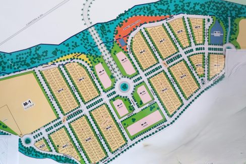
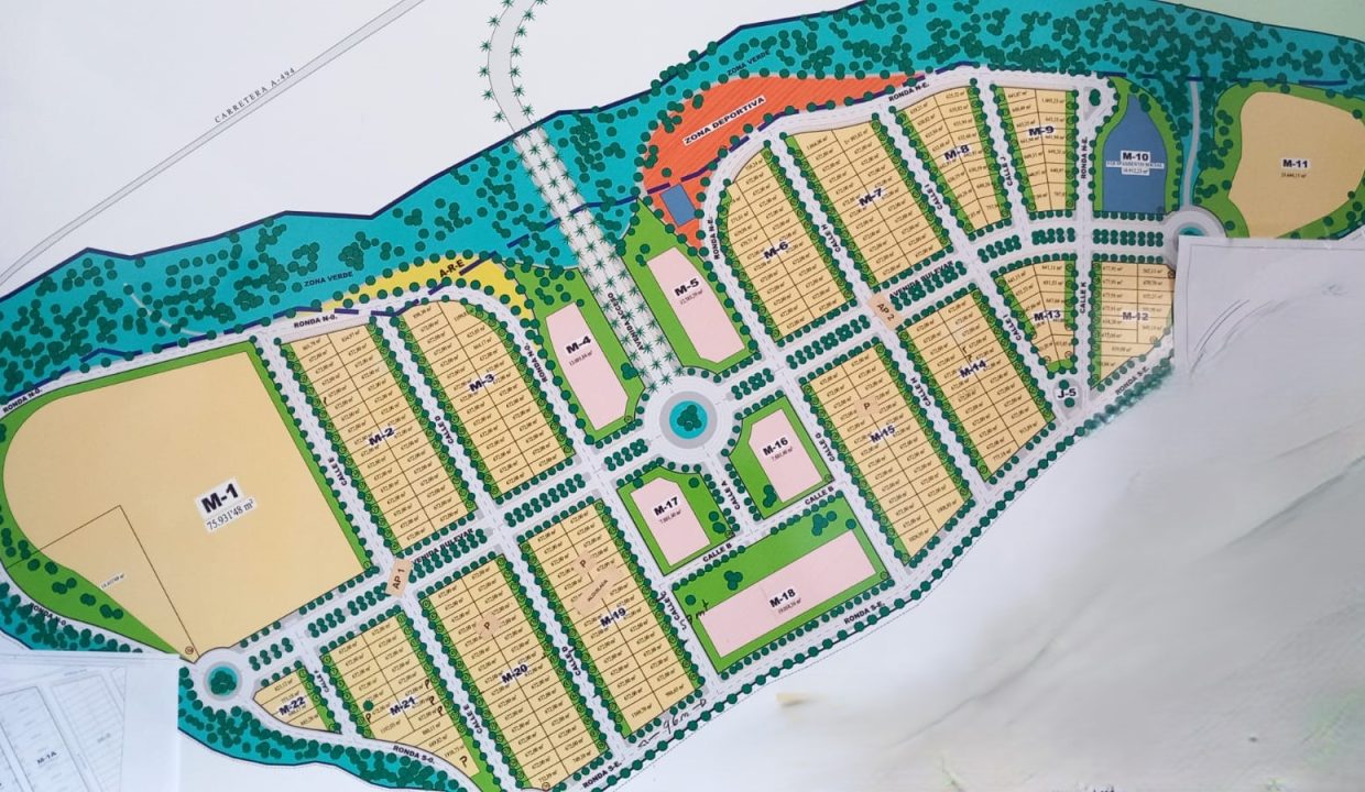
Conjunto de parcelas polígono La Jara

VENTA

CONSULTAR

  • 635 886 008 (5)
  • WhatsApp Image 2024-11-11 at 09.53.10
  • 635 886 008 (5)
  • WhatsApp Image 2024-11-11 at 09.53.10

ID de la propiedad:

 ATRESH-9743

Descripción

Presentamos un conjunto de parcelas en el polígono La Jara, una ubicación estratégica para desarrollar proyectos empresariales y logísticos. Las parcelas, ubicadas en la manzana M8, ofrecen distintas superficies para adaptarse a las diferentes necesidades.
Detalles de las parcelas:
◾Parcela 268: 630m2
◾Parcela 269: 649m2
◾Parcela 256: 649m2
◾Parcela 257: 767m2
◾Parcela 270: 757m2
Contacta con nosotros para más información.
635 886 008
www.atresh.com

Localización

Vistas del Inmueble

Agentes

Propiedades que le pueden interesar

Ver propiedad

Espectacular terreno comercial en pleno centro de Moguer

Si estas pensando en montar tu propio negocio en Moguer…

m2
133 m2
VENTA

CONSULTAR

Ver propiedad

CASA DE CAMPO EN ZONA DE MONTEMAYOR

CASA DE CAMPO ZONA MONTEMAYOR, 700 METROS PARCELA CON EDIFICACIÓN…

Habitaciones
3
Cuartos de baño
1
m2
700 m2
VENTA

120,000€

Contactar

Atesh Inmobiliaria

info@atresh.com
635 886 008

Menú legal

  • Aviso Legal
  • Política de Privacidad
  • Política de cookies

© 2023. All rights reserved.

|

Desarrollado por JesusJG.es

ATRESH INMOBILIARIA MOGUER
  • Iniciar sesión
¿Olvido su contraseña?

Este sitio web utiliza cookies para mejorar su experiencia. Asumiremos que está de acuerdo con esto, pero puede optar por no participar si lo desea.Configuraciones de cookiesACEPTAR
Política de privacidad y cookies

Resumen de privacidad

Este sitio web utiliza cookies para mejorar su experiencia mientras navega por el sitio web. De estas cookies, las cookies que se clasifican según sea necesario se almacenan en su navegador, ya que son esenciales para el funcionamiento de las funcionalidades básicas del sitio web. También utilizamos cookies de terceros que nos ayudan a analizar y comprender cómo utiliza este sitio web. Estas cookies se almacenarán en su navegador solo con su consentimiento. También tiene la opción de darse de baja de estas cookies. Pero la exclusión voluntaria de algunas de estas cookies puede afectar su experiencia de navegación.
Necessary
Siempre activado
Las cookies necesarias son absolutamente esenciales para que el sitio web funcione correctamente. Esta categoría solo incluye cookies que garantizan funcionalidades básicas y características de seguridad del sitio web. Estas cookies no almacenan ninguna información personal.
Non-necessary
Cualquier cookie que no sea particularmente necesaria para que el sitio web funcione y se use específicamente para recopilar datos personales del usuario a través de análisis, anuncios y otros contenidos integrados se denominan cookies no necesarias. Es obligatorio obtener el consentimiento del usuario antes de ejecutar estas cookies en su sitio web.
GUARDAR Y ACEPTAR